Большая студия 32 кв.м. Москва Перовское ш.

На карте Сброс
Ольга Суменкова
Эксперт по недвижимости
Я перезвоню Вам через 2 минуты и отвечу на любые вопросы об этой недвижимости
Адрес объекта:
Москва, Нижегородский район, Перовское ш., д.1
13 599 999 ₽
$ 147 826
€ 136 000
Общая
32.0 м²
Жилая
20.0 м²
Кухня
10.0 м²
Этаж
17 из 22
Код объекта
124147040
Количество комнат
Студия
Этаж/Этажность
17
22
Общая площадь
32.00
Жилая площадь
20.00 м²
Площадь кухни
10.00 м²
Площадь комнат
20
Ремонт
Требует ремонта
Пассажирские лифты
1
Грузовые лифты
2
Площадь дома
32.00 м²
Расстояние от МКАД
10 км
Район
ЮВАО
Сан. узел
Совмещенный
Тип дома
Панельный
Кухонная плита
электрическая плита
Вид из окна
Во двор
До метро
Пешком
10
 мин.
Арт. 124147040
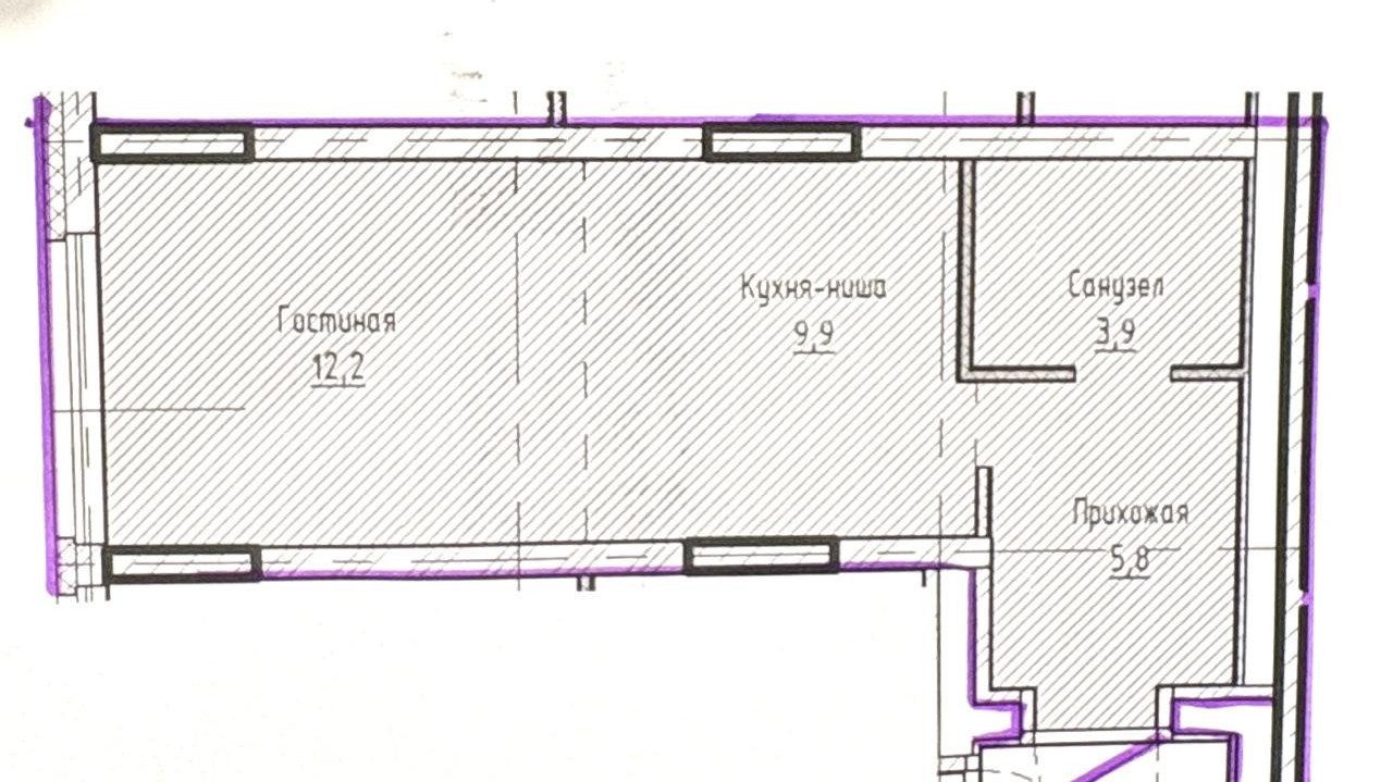
️ Уникальная студия в ЖК "Издание" — Ваш новый уровень жизни!
О квартире:
Современная студия (по факту однокомнатная) — 32 м²
17 этаж с шикарными видами
Просторная прихожая — 6 м²
Санузел — 4 м²
Кухня-гостиная — 22 м²
Сдача дома: 2027 год

ЖК Издание:
Ваш личный парк 2,4 га для прогулок и отдыха прямо во дворе
Рядом школы, детские сады, супермаркеты, фитнес-клубы, студии йоги и растяжки
Близость метро — превосходная транспортная доступность
Удобные выезды на Северо-Восточную и Юго-Восточную хорды

Бесплатное юридическое сопровождение сделки!
Содействие в получении специальных условий и преференций по ипотеке.

Позаботимся о чистоте и безопасности оформления документов, чтобы покупка прошла легко и спокойно.
Звоните Пишите прям сейчас
С удовольствием расскажу подробнее и помогу сделать правильный выбор. Звони. Данная планировка одна из лучших.
  • Опыт работы в сфере недвижимости более 20 лет
  • Выгодная комиссия и юридические гарантии
  • Все консультации компании бесплатны
  • Мы относимся к нашим клиентам, как к членам семьи!
Адрес объекта:
Москва, Нижегородский район, Перовское ш., д.1
Ольга Суменкова
Эксперт по недвижимости
Я перезвоню Вам через 2 минуты и отвечу на любые вопросы об этой недвижимости
Похожие объекты